Ziyaretçi
Hilton Pattaya Otel Lobisi - Tayland, Bangkok
Sponsorlu Bağlantılar
Tasarım: Departman of Architecture
Yer: Tayland, Bangkok


Tayland Bangkok, Pattaya oteli lobisinde “Departman of Architecture” mimarlık grubu kumaş katlı yüzgeç stili tavanda uygulamıştır.


Sahilde bir kule bina içinde 17. katta yer alan Hilton Pattaya Oteli lobisine merkezi asansörlerle gelinir ve lobinin geniş pencereleri deniz manzarasını ziyaretçilere sunmak için tasarlanmıştır.


Havalandırma tesisatının rüzgarı tavandaki kumaş yaprakları dalgalandırır.


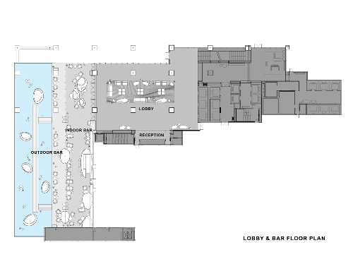
Bu iç mekan düzenlemesi 17. Katta bir kule üzerinde lüks bir otelin lobi ve barı ve onun dış mekanını içeren plajını içerir.


Yapının derinliği, genişliği ve hacmine göre nispeten düşük durumda bulunan tavanının bulunması bir dezavantajdı. Yine 17 kat yani zemindeki resepsiyondan 40 m yükseklikte bir lobi vardı ve buraya erişmek merkezi bir asansörle olabilirdi. Bu dezavantajlara karşın 17. Kat müthiş bir deniz manzarası sunuyordu.


Mimarların teklifi, önce herhangi bir mekanın tavanı kadar ve yüksekliğinde olan tavan düzleminin zorluklarını ve problemlerini kabul etmeyi içermiştir. Bu mekanın tasarımında okyanus yüzeyindeki ışık yansımaları ve gözden uzak yerlerde dalgıçların denizdeki hareketlerinden esinlenilmiştir. Asansörden inen müşteriler dalgalanan tavandaki katlı kumaş hareketleriyle senkronize olarak deniz manzarası yönüne doğru bir anlamda sürüklenerek hareket ederler.


Havalandırma tesisatı rüzgarı kumaş malzemeleri sürekli olarak dalgalanarak tavandaki dalgalı efekti canlı tutar.

Dış ortam gün boyunca doğal ışık ile yıkanırken geceleri tavandaki saydam kumaşların dalgalanması iç mekanda ışık, saydamlık ve su etkisi oluşturur. Tavandaki ışık yansımaları kavisli şekilde duvarlara da akseder ve mekanın bir yüzündeki sonsuz uzunluktaki duvar bu şekilde canlandırılmış olur ve bara bağlanır.

Açık bar alanının yarısından dar bir geçit ile bağlantılı, yüzer damlacıktan esinlenen adacıklar havuz gölet haline getirilir. Yüz görüntüleri çoğunlukla su yüzeyinde sabit yansımaların yanı sıra geceleri açık bar boyunca parlak ve hareketli bir izlenim yaratırlar.

Yer: Tayland, Bangkok


















Kaynak: Mimdap
İmajlar: Wison Tungthunya
Kaynak: Dezeen
Çeviri: Mimdap
İmajlar: Wison Tungthunya
Kaynak: Dezeen
Çeviri: Mimdap

İç Mekan Tasarımı - Hilton Pattaya Otel Lobisi
