Ziyaretçi
Oslo’da delikli bir tasarım
Sponsorlu Bağlantılar
DnB NOR Bank Merkez binası: MVRDV


Proje verileri:
Proje ismi: DnB NOR Bank Headquarters
Programı: Ofis binası
Mimari Proje: MVRDV, A-lab, Dark Arkitekter AS,
Toplam inşaat alanı: 80,000 m2
Merkez Binanın büyüklüğü: 36,5000 m2.
Konumu: Oslo, Norway
Bitirme tarihi: 2012 başı.


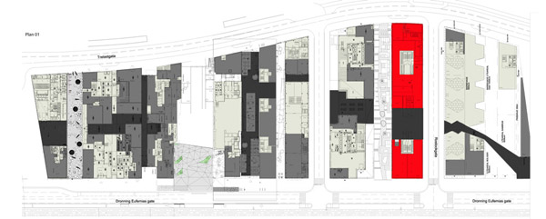
Norveç Mimarlık Firması MVRDV, Oslo Banliyösü Geliştirme Planı’nın bir parçası olarak hazırladı. Birbiri yanında yer alan üç ayrı binadan oluşan projenin bir bölümü bankacılık işlemlerine ayrılmış, Üç yapı yer altından birleştirildi.


Binanın çok parçalı cepheleri Oslo tren deposu ile kontrast oluşturmakta.


Kompleks bir program çok sayıda alt mekanı içermekte böylelikle çalışanların birbirleri ile ilişki içinde çalışmalarını sağlamakta. Binaların içindeki yollar ise farklı mekanları birbirine bağlamakta. Ulaşım bina içinde yer alan dış alanlar ve yeşil mekanlarla zenginleştirilmiş.


Binanın delikli yapısından ışığın en içteki yerlere kadar ulaşması beklenmekte. Taş kaplama cephenin bitkilerle zenginleştirilmesi projenin bir diğer yanı.







Proje ismi: DnB NOR Bank Headquarters
Programı: Ofis binası
Mimari Proje: MVRDV, A-lab, Dark Arkitekter AS,
Toplam inşaat alanı: 80,000 m2
Merkez Binanın büyüklüğü: 36,5000 m2.
Konumu: Oslo, Norway
Bitirme tarihi: 2012 başı.













Kaynak: Mimdap
Kaynak: MVRDV
Çeviri ve montaj : Mimdap
Kaynak: MVRDV
Çeviri ve montaj : Mimdap

Mimari Tasarılar - DnB NOR Bank Merkez Binası




