Ziyaretçi
Sheraton Milan Malpensa Airport Otel ve Konferans Merkezi
Sponsorlu Bağlantılar
Sheraton Milan Malpensa Airport Otel ve Konferans Merkezi / King Roselli Architetti
Mimarlar: King Roselli Architetti – Riccardo Roselli
Yer: Milan, İtalya
Proje Mimarı: Arianna Nobile
İç Tasarım: Daniele Del Prete
Tasarım Ekibi: Andrea Ricci, Mario Augusti, Katia Scarioni, Giandomenico Florio, Fabrizio Bonatti
Peyzaj: Dana Vocino
Proje Alanı: 50.000 m²



King Roselli Architetti havaalanı önünde yer alan bu büyük otelin tasarımını yaptı. Büyüklüğü 420m uzunluğunda, 64m genişliğinde, yüksekliği 21m olan bu bina fonksiyonel beklentilerin ön plana çıktığı bir yapı olarak tasarlandı.



Otelin fonksiyonel özellikleri dışında imaj olarak da güçlü bir kimliğe sahip olması beklendi ve bu amaçla özellikle malzeme seçiminde büyük bir titizlik gösterildi. Çünkü otelin sadece dört kenarından değil, aynı zamanda havadan da görülmesi sözkonusuydu. Bu nedenle sonuç olarak çekilmiş fiberglas tercih edildi. Çünkü bu malzeme ile hafiflik, elastikiyet, çok farklı ısılarda bozulmama (-20+50), çok küçük bir parçadan büyük yüzeyler elde edebilme (140cm genişliğinde istenilen uzunlukta paneller; burada 25 metre üzeri paneller gerekiyordu) gibi özellikleri bulunmakta. Bu malzeme genellikle endüstriyel amaçlarla kullanılmakta, bu nedenle de üreticileri malzemenin son derece hassas üretimi ve montajı konusunda bilgi sahibidir.



Kabuk bir iç taşıyıcı sisteme bağlanmakta, çelik yaylardan oluşan bu elamanlar bütün genişliği kaplayarak sürekli ve yumuşak bir deri oluşumuna altyapı sağlamakta.
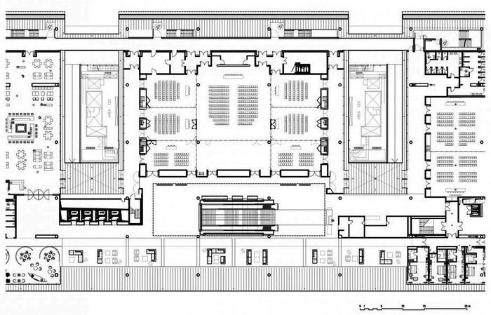
Otelde havalanından doğrudan ulaşılabilen toplam 436 oda, bir konferans merkezi yer almakta. Uçaktan görülebilen iç avlular, çatı, teraslar, yapının hava almasını da sağlamakta.



Misafir Blokları
Odaların düzeni, yedi girinti etrafına yerleşmiştir. Bu sistem bir barkod düzeni oluşturmakta, aynı zamanda havaalanından odaların içine doğrudan bakılabilmesi olanağını sağlamaktadır.



Otelin batı cephesi boş bırakılmış, böylelikle yapının yataylığı vurgulanırken, bu uçta yer alan su havuzlarına da yer oluşturulmuştur.
Mimarlar: King Roselli Architetti – Riccardo Roselli
Yer: Milan, İtalya
Proje Mimarı: Arianna Nobile
İç Tasarım: Daniele Del Prete
Tasarım Ekibi: Andrea Ricci, Mario Augusti, Katia Scarioni, Giandomenico Florio, Fabrizio Bonatti
Peyzaj: Dana Vocino
Proje Alanı: 50.000 m²









Otelde havalanından doğrudan ulaşılabilen toplam 436 oda, bir konferans merkezi yer almakta. Uçaktan görülebilen iç avlular, çatı, teraslar, yapının hava almasını da sağlamakta.



Odaların düzeni, yedi girinti etrafına yerleşmiştir. Bu sistem bir barkod düzeni oluşturmakta, aynı zamanda havaalanından odaların içine doğrudan bakılabilmesi olanağını sağlamaktadır.



Kaynak: Mimdap
Kaynak:Arcdaily
Çeviri:Mimdap
Kaynak:Arcdaily
Çeviri:Mimdap

Mimari Yapılar - Sheraton Milan Malpensa Airport Otel ve Konferans Merkezi
