Ziyaretçi
Mimesis Müzesi
Sponsorlu Bağlantılar
Álvaro Siza Arquitecto
Mimesis Müzesi, Seul’un 30 km uzağındaki kasaba olan Paju Book yerleşimindedir.



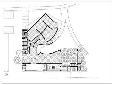
Proje merkezi bir avlu etrafında biçimlendirilmiş, avluyu saran akan beton kalıbı ile hacimler yaratılmıştır. Siza site gelmeden üzerine çeken bir kedi bir krokisinden esinlenmiştir.
“Bu kroki ile bina bir hareket fikrine göre, bir jest olarak çizilmiş”
diyor Carlos Castanheira



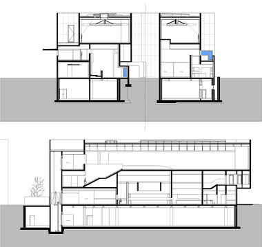
Duvarlar en tepeye kadar yerinden sökülüp kavisli şekillerle yapılmış ve aralıklarından, tepelerden ışık alan bir özellikte düşünülmüştür. Penceresiz duvarlar nötr ve sade bir renkle boyanırken zemin mermer ve meşe parke kaplamalı olarak yapılmıştır.



Üç katlı binanın birinci katında ana sergi mekanları bulunur. Bodrum katta , geçici sergi galerileri ve resepsiyon zemin katta bir kafeterya ve personel yerleri ve bir de asma kat vardır.



Site alanı: 4.650 metrekare
Ayak izi alan: 1300 metrekare
Toplam taban alanı: 4.000 metrekare
İşin tamamlanması : 2009
İşveren: Açık Kitaplar Yayıncılık A.Ş.
Mimarlar: Álvaro Siza Arquitecto
Carlos Castanheira & Haziran Kim Sung
Mühendis: Jung-Myung Engineering Group Co
Hansan Mühendislik A.Ş.
Jungang Constructural Mühendisliği Danışmanı
İnşaat Şirket: Hanool İnşaat A.Ş.
Çizimler: Álvaro Siza
Fotoğraf: Duccio Malagamba



“Bu kroki ile bina bir hareket fikrine göre, bir jest olarak çizilmiş”
diyor Carlos Castanheira








Ayak izi alan: 1300 metrekare
Toplam taban alanı: 4.000 metrekare
İşin tamamlanması : 2009
İşveren: Açık Kitaplar Yayıncılık A.Ş.
Mimarlar: Álvaro Siza Arquitecto
Carlos Castanheira & Haziran Kim Sung
Mühendis: Jung-Myung Engineering Group Co
Hansan Mühendislik A.Ş.
Jungang Constructural Mühendisliği Danışmanı
İnşaat Şirket: Hanool İnşaat A.Ş.
Çizimler: Álvaro Siza
Fotoğraf: Duccio Malagamba
Kaynak: Mimdap
Kaynak: Arcspace
Çeviri: Mimdap
Kaynak: Arcspace
Çeviri: Mimdap

Müzeler - Mimesis Müzesi








