Ziyaretçi
Bern Paul Klee Müzesi
Sponsorlu Bağlantılar
Mimari Proje: Renzo Piano



Paul Klee Müzesi sanatçı Paul Klee adına İsviçre’de, Bern kentinde inşa edildi. Projesi Renzo Piano tarafından hazırlanan müzede sanatçının eserlerinin takriben %40’ı sergilenmekte. Livia Klee-Meyer, Paul Klee’nin gelini tarafından bağışlanan eserlere ilaveten gelen eserlerle zenginleşen müze, mimari tasarımı ile de dikkat çekmekte. 2000 yılında başlanan ve 2005 yılında tamamlanan müze dalgalı araziye dalgalı biçimi ile uyum sağlamakta.


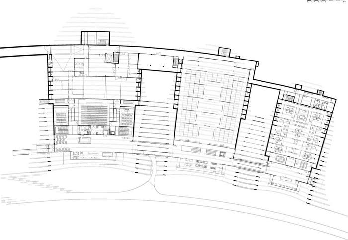
Bern kenti doğusunda üç sıra dalga halinde tasarlanan müze, bir ressam, öğretmen, müzisyen, yazar ve filozof olan Paul Klee’nin anısına 300 kişilik bir konser salonunu barındırmakta. Ayrıca sanatcının kitapları başta olmak üzere çok sayıda eserin satıldığı bir alışveriş yolu, çocuklar için ayrılan alanlar, sergi alanları…. üç adet yapay höyükde yer almakta. Güney kısımda bir bilgi ve iletişim alanı olarak hizmet vermekte. Bilgisayarlar, konferans salonu ve odaları, araştırma ve koleksiyon departmanı yer almakta.


Sergi salonları 850 m2 lik alanlarıyla yılda ortalama dört adet sergiye ev sahipliği yapmakta. Geçici sergiler için ayrılan alan ise 1750 m2’dir. Kuzeyde çeşitli etkinlik alanları dışında atölye çalışmalarına ayrılmış bir oda bulunmakta. Heykel parkı, yürüyüş yolları ise yapının sırtını verdiği doğal tepeleri sadece birkaç metre geçen binaları çevrelemekte.





















Kaynak: Mimdap
Kaynak: baudokumentation
Resimler: Paul Klee Museum
Çeviri: Mimdap
Kaynak: baudokumentation
Resimler: Paul Klee Museum
Çeviri: Mimdap

Müzeler - Bern Paul Klee Müzesi






