Ziyaretçi
Mediacite - Liege
Sponsorlu Bağlantılar
Mimar: Ron Arad Architects Ltd.


Ron Arad Architects, Médiacité olarak bilinen 40 bin metrekarelik bir karma kullanımlı projenin yeni alışveriş merkezi, çatısı ve kamusal alanlarını tasarlamak üzere davet edildi.



Bir zamanlar dünyanın önde gelen çelik üretim merkezi olan ve ekonomik krizden bu yana düşüşe geçen Liege’e yerleştirilen bina, kentin yenilenmesinin sembolü olarak yapılıyor ve kentsel dönüşüme öncülük ediyor.



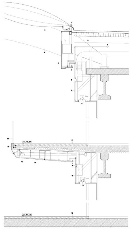
350 metre uzunluğundaki alışveriş merkezi, bir uçta yenilenen eski Pazar merkezi dokusu boyunca uzanıp diğer uçta yeni Belçika ulusal televizyon binasına bağlanıyor. Çatının tasarımı bu öğeleri, alışveriş merkezi boyunca dalgalanan karmaşık bir çelik çatı kirişleri ağı ile birleştiriyor.



Çelik kafes, farklı deneyimlerin yaşanacağı çeşitliliği oluşturacak şekilde hem yüksekliği hem de yapısal derinliği değişerek altındaki alışveriş merkezi hacmine şekil veriyor. Yapı ana binanın hacminden çıkarken çelik kirişler altındakini sararak cepheyle birleşiyor ve binanın çeperini oluşturuyor.


Yükün azaltılması için bu karmaşık üç boyutlu yapı, şeffaf hafif ETFE ile kaplanmış. Çatı giderek cepheye dönüşürken ETFE kaplama da kıvrımlı alüminyum yağmur ve gölge panellerine ve cama dönüşüyor.


Proje 34 ayda, çok yoğun bir programla gerçekleştirildi ve Nisan 2007’de başlanan binanın açılışı Ekim 2009’da yapıldı.















Kaynak: Mimdap
Yazı ve Görseller: Arch Daily
Çeviri: Mimdap
Yazı ve Görseller: Arch Daily
Çeviri: Mimdap

Mimari Yapılar - Mediacite
















